Beschrijving

Verrassend ruime tussenwoning met doorzonwoonkamer, keuken, drie slaapkamers op de eerste verdieping, badkamer, zolderetage met voorzolder en zeer ruime zolderkamer met twee dakkapellen. Ruime achtertuin met stenen berging en toegang tot de brandgang.

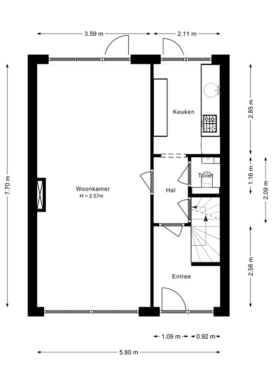
Indeling

U komt binnen in de vestibule, daarna entree met meterkast (8 groepen met aardlekschakelaars), betegelde toiletruimte en verdiepte kelderkast. Vanuit de entree is toegang tot de woonkamer en de keuken. 

De woonkamer (ca. 3,59 bij 7,70 m.) met veel lichtinval, laminaatvloer (grijs/bruin) en deur naar de achtertuin. 

In de keuken (ca. 2,10 bij 2,85 m.) vindt u een keurig keukenblok aan twee zijden met inbouwapparatuur (2022). De keuken ligt aan de achterzijde van de woning. Ook hier ligt een bruin/grijze laminaatvloer. Vanuit de keuken kunt u naar de achtertuin.

Vanuit de hal kunt u via een vaste trap naar de eerste verdieping.

Eerste verdieping

Overloop met toegang tot drie slaapkamers, badkamer, toilet en dichte trap naar tweede verdieping. 

Slaapkamer I aan achterzijde (ca. 4,15 bij 3,61 m.).

Slaapkamer II aan achterzijde (ca. 2,88 bij 2,08 m.) met wasmachine-aansluiting.

Slaapkamer III aan voorzijde (ca. 3,40 bij 3,61 m.). 

Toiletruimte met hangend toilet en wastafel.

De betegelde badkamer is 2,08 bij 1,52 m. en ligt aan de voorzijde van de woning. De badkamer heeft een raam t.b.v. daglicht en ventilatie, een wastafel met meubel en douche met glazen wand en thermostatische kraan.

Tweede verdieping

Ruime overloop over de gehele diepte van de woning. Hier bevindt zich de Nefit EcomLine HR Excellent (uit circa 2005).

Slaapkamer IV is door de dakkapel aan de voor- en achterzijde een heerlijke ruime en lichte kamer.

Tuin

De woning beschikt over een fijne voortuin van 6,40 breed en 5,41 m. diep.

De -op het oosten gelegen- achtertuin is maar liefst zo’n 12,91 m. diep en 6,40 m. breed. De tuin is diep genoeg om te kunnen genieten van de zon. De achtertuin is voorzien van borders met vaste beplanting, sierbestrating, een watertappunt en een lamp aan de achtergevel. 

Achter in de tuin staat de stenen berging met elektra . Vanuit de achtertuin heeft u toegang tot de brandgang.

Bijzonderheden

Ligging

In de nabije omgeving is de Ginnekenmarkt, het winkelcentrum ‘De Burcht’ en het Valkeniersplein. Het centrum van Breda ligt op slechts 7 minuten fietsafstand. U kunt vrij parkeren aan de openbare weg.
Via de nabij gelegen uitvalswegen heeft u een vlotte verbinding met de snelwegen.

Eigenaar heeft deze woning nooit zelf bewoond, waardoor gebreken hem mogelijk onbekend zijn. Daarom zal er een 'niet-bewoningsclausule' in de koopovereenkomst worden opgenomen. Wij raden kopers een bouwkundige inspectie aan.

================================================================================================================================

ALGEMEEN
Deze verkoopbrochure is in opdracht van de verkoper zo nauwkeurig mogelijk opgesteld. Eventuele maatvoeringen in teksten, plattegronden, inhouds- en oppervlaktematen etc. zijn bij benadering en mogelijk niet geheel conform NEN2580. Koper heeft de mogelijkheid gehad om de maten op/na te meten en vrijwaart verkoper en diens makelaar van elke aansprakelijkheid wanneer achteraf blijkt dat de maatvoering afwijkt van de werkelijkheid. Aan verkopers is niet bekend dat in de onroerende zaak asbest is verwerkt anders dan in de tijd waarin de onroerende zaak werd vervaardigd te doen gebruikelijk was. 

Bij eventuele verwijdering van asbesthoudende materialen dienen op grond van de milieuwetgeving speciale maatregelingen te worden genomen. Koper verklaart hiermee bekend te zijn en vrijwaart verkoper voor alle aansprakelijkheid die uit de aanwezigheid/verwijderen van asbesthoudende materialen kunnen voortvloeien. De verkopend makelaar streeft naar een zo nauwkeurig mogelijke inventarisatie van de beschikbare gegevens, toch zijn deze gegevens slechts indicatief. De koper heeft een onderzoek plicht naar de zaken die voor hem van belang zijn. Hij kan zich nimmer beroepen op onbekendheid van feiten, welke hij zelf had kunnen onderzoeken/waarnemen of die op te zoeken zijn in openbare registers. De makelaar kan u desgewenst verwijzen naar de betreffende instanties. Verkopend makelaar adviseert u te allen tijden een bouwkundige keuring te laten uitvoeren en om u bij te laten staan door een aankopend makelaar.

Kenmerken